Zero Charge ESD Testers & Meters
Wrist strap, Heel Strap Measuring Systems, Resistance Checkers and Field meters
Check our products How and Where to Order

You May Also Need:

Zero Chargeā„¢

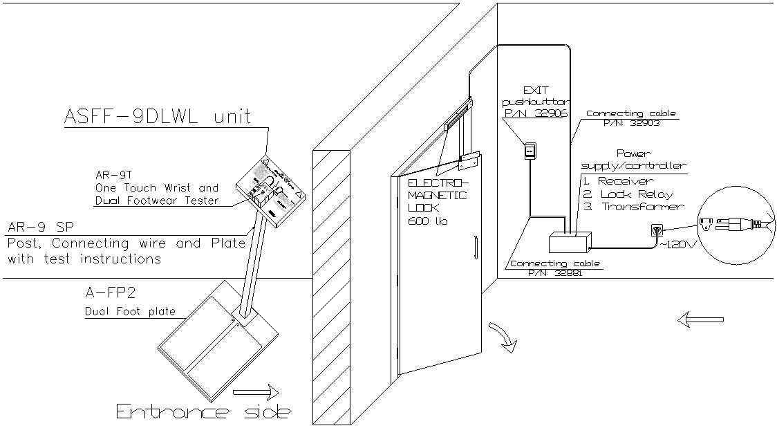
ASFF-9DLWL-A Kit
ESD Safety Personnel Entry Control System with Magnetic Lock Kit and a wireless transmitter allowing easy relocation of the wriststrap/heelstrap checker

ASFF-9DLWL-A-Kit.jpg

The system is complete and ready for quick installation by anyone. Only an electric drill and a screwdriver are required to install it. The package includes all necessary hardware.

The complete system includes

  • ASFF-9DLWL-A One touch Wrist strap and Dual Footwear Test Station with lock activation transmitter which includes

- AR-9T-A One touch Wrist strap and Dual Footwear tester

- AR-9SP Post with a plate containing test instructions for the ASFF-9T unit

- A-FP2 Dual Foot plate

  • Wall mounted Exit Pushbutton P/N 32906
  • Magnetic Door Lock (600Ib or 280Kg) P/N 32882
  • Set of mounting brackets (Z and L) to conveniently mount the magnetic lock P/N 32883
  • 12V DC power supply/controller to connect Exit pushbutton to the 120V power outlet P/N 32911
  • Connecting cables set P/N 32907 includes

- Cable to connect Exit Pushbutton with Power supply/Controller (10ft-3m) P/N 32881

- Cable to connect Magnetic Door Lock with the power supply (20ft-6m) P/N 32903

  • Key Chain transmitter (Bypasses the AWM-9DLWL tester if access is needed in an emergency) P/N 32925
32906.jpg 32882 and 32883.jpg 32911.png 32907.png 32925.jpg
P/N 32906 P/N 32882 and P/N 32883 P/N 32911 P/N 32907 (connecting cables set) P/N 32925