You May Also Need: |
The system is complete and ready for quick installation by anyone. Only an electric drill and a screwdriver are required to install it. The package includes all necessary hardware. The complete system includes
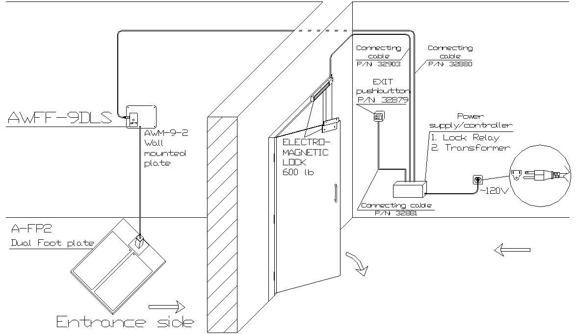
- AR-9DL-A One touch Wrist strap and Dual Footwear tester - AWN-9-2 wall-mounted plate with test instructions and connecting wire - A-FP2 Dual Foot plate
- 2 wire cable to connect ASFF-9DLS with the controller (30ft-10m) P/N 32880 - Cable to connect Exit Pushbutton with Power supply/Controller (10ft-3m) P/N 32881 - Cable to connect Magnetic Door Lock with the power supply (20ft-6m) P/N 32903
|






