 |
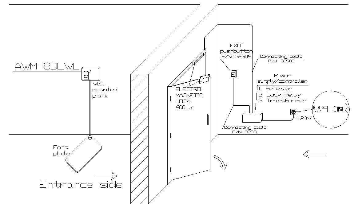
KIT AWM-8DLWL
Testeur mural de bracelet / chaussure avec déverouillage de porte.
Kit composé d'une gache de porte magnétique resistant à une force 280 Kg
|
|
Description Produit :
Le testeur mural avec ouverture de porte wireless, permet de protéger l'acces a votre zone de travail ESD, en autorisant l'accès aux personnes correctement protégées qui passent le test.
Le controleur AR-8DLWL-A est relié en wireless à une gache de porte magnétique
qui s'active uniquement si la personne a passé le test de bracelet et/ou de chaussure.
Une option d'ouverture via télécommande porte-clés est possible aussi, afin d'ouvrir la porte en situation d'urgence sans avoir à passer de test.
Le controlleur AR-8DLWL peut être programmé pour ouvrir la porte de trois manieres :
|
Note: Bracelet non fourni avec le kit
AR-8 Testeur de bracelet et chaussure
|

|
Caractéristiques:
Le système complet comprend :
- AWM-8DLWL-A Testeur de bracelet et chaussure avec commande d'ouverture de porte sans-fil
Contenu du kit :
- AR-8T Testeur de bracelet et de chaussure avec pile 9V
- AWM-WP – Panneau mural jaune avec instructions de test
- AWM- FP – Plaque testeuse de chaussure
- A-FM9-0 – Cordon de mise à la terre Zero ohms
- Bouton mural de sortie P/N 32906
- Cable de connexion pour bouton sortie avec boitier controleur alimenté (3m) P/N 32881
- Gache de porte magnétique (resistante à 280Kg) P/N 32882
- Kit de fixations (Z et L) de montage de la gache magnétique P/N 32883
- Alimentation 12V du controleur de l'interrupteur mural de sortie P/N 32911
- Cordon d'alimentation de la gache magnétique de porte P/N 32903
- Télécommande porte-clefs (permet d'ouvrir la porte en cas d'urgence) P/N 32925
- Notice de montage en Français
|
|

P/N 32906
|

P/N 32882 and P/N 32883
|

P/N 32911
|

P/N 32907 (connecting cables set)
|

P/N 32925
|
Instruction Manual - Downloads
|